BRING THE 1950'S BACK TO LIFE!

 

A 1950’s home that has only had two owners in its life, and is looking for a new owner, an enthusiastic renovator or a family looking for a great size home and large backyard with loads of paths and space. Capatilise on this great location, close to all amenities such as schools, shops, bus transport which takes you straight to the train and into the city, together with convenient access links to the main arterials North and South makes this a sought after location.

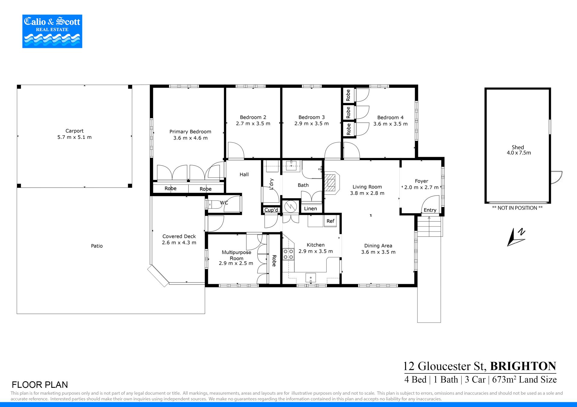
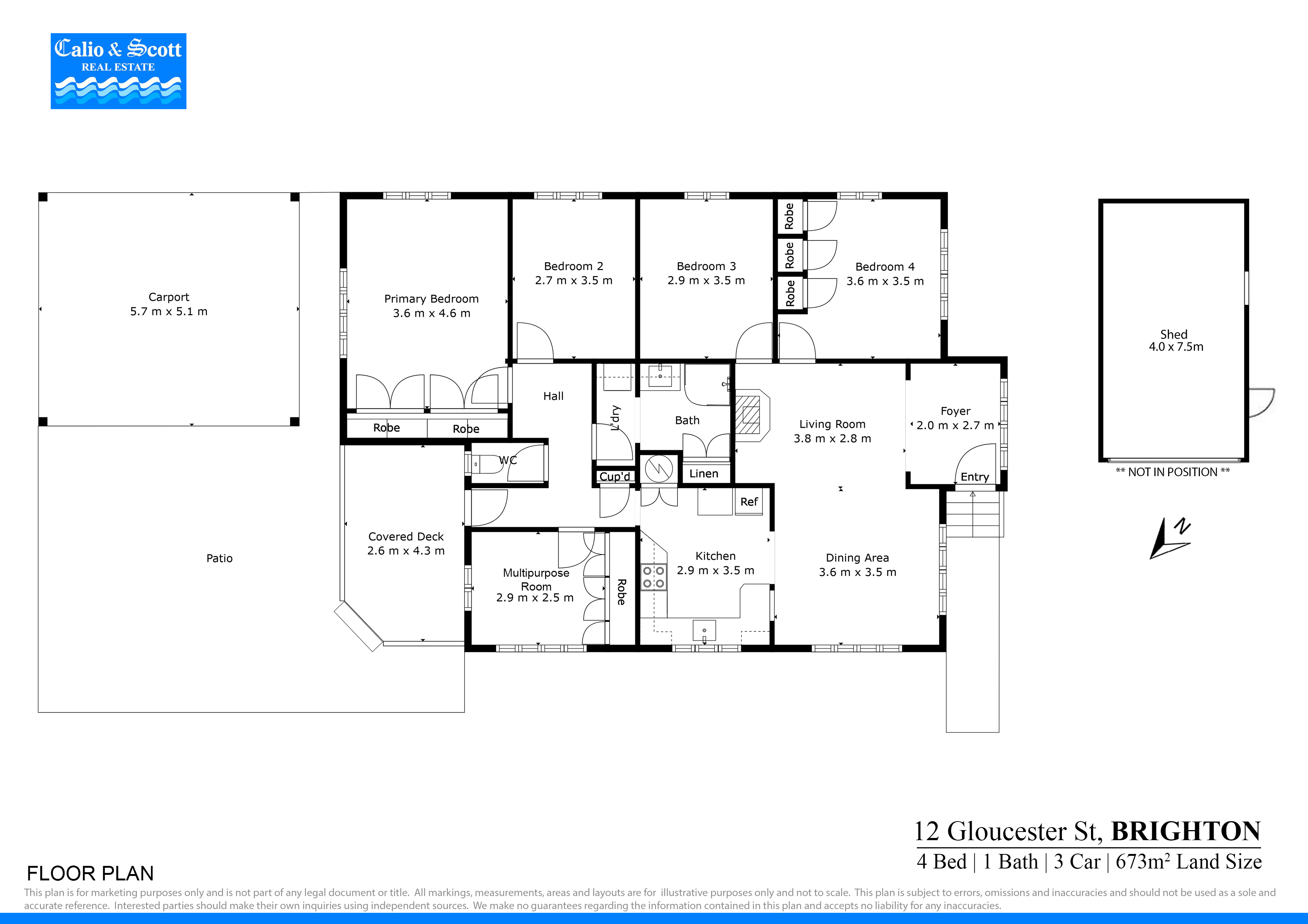
The property’s current floor plan offers 4 bedrooms plus a study or sunroom.  All bedrooms have built-ins which is great for the growing or large family as there is storage galore.  The kitchen opens into the dining and lounge area, with a wood fireplace to keep you toasty warm whilst relaxing at night.  Polished floor boards in each of the bedrooms, and versatile cork style flooring in the dining and living areas.  The rear deck leads into the hallway down to the versatile kitchen.  

Offering a wide frontage the block then sweeps down the driveway which is fully paved from the front of the house into a large single garage and off to the right hand side a double carport leading to a lovely garden and seating area.  

Set on the high side of the street, this property is ready for someone to make it their own today!

 

Features

Study
4 1 3
Address 12 Gloucester St, Brighton
Price SOLD for $1,175,000
Property Type Residential
Property ID 1880
Category House

Agent Details

Michelle Delaney photo

Michelle Delaney

0417656905
View Profile